1、首先如果是仅凭自己想象是很难画出来的。这时候我们可以借助一些建筑软件,例如下图的这个。

2、用软件建出大体模型后,就可以直接看他的剖面图了。先不要着急下笔,先看看图心里有个大概先。

3、定位,要让剖面图位于你的图纸中央,不是随便乱画。画图美观也是一个很重要的部分。

4、然后画轴网,这样便于我们接下来的画墙体,平台定位等。

5、接下来,就按着图纸一步一步画下来即可,注意要想清楚才开始画,避免不必要的涂涂改改。

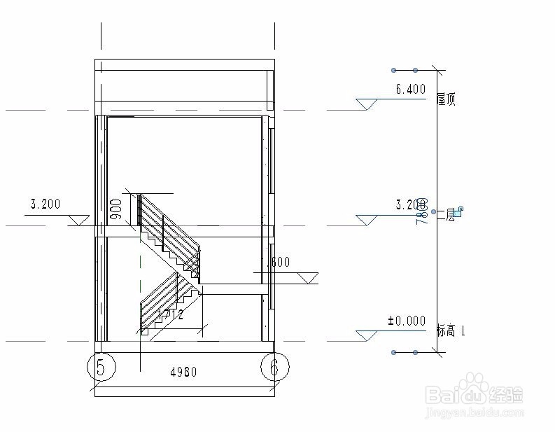
6、最后一步也是很多人忘记的一步,要画标高。

1、首先如果是仅凭自己想象是很难画出来的。这时候我们可以借助一些建筑软件,例如下图的这个。

2、用软件建出大体模型后,就可以直接看他的剖面图了。先不要着急下笔,先看看图心里有个大概先。

3、定位,要让剖面图位于你的图纸中央,不是随便乱画。画图美观也是一个很重要的部分。

4、然后画轴网,这样便于我们接下来的画墙体,平台定位等。

5、接下来,就按着图纸一步一步画下来即可,注意要想清楚才开始画,避免不必要的涂涂改改。

6、最后一步也是很多人忘记的一步,要画标高。
